| |
|
|
|
|
|
| |
|
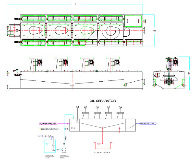
제품소개 유수분리기 IAF TYPE |
| |
|
|
| |
|
|
|
 |
| |
 |
| |
 |
| |
 |
| |
 |
MODEL NO |
표준처리능력 (㎥/HR) |
DIMENSION (LXWXH) (M) |
Rotor/
Skimmer 수량 |
공중량(TON) |
운전중량(TON) |
DHIAF-5 |
5 |
2.8*0.96*1.2 |
2/1 |
1.8 |
2.7 |
DHIAF-10 |
10 |
4.15*0.96*1.3 |
4/1 |
2.7 |
3.6 |
DHIAF-20 |
20 |
6.2*1.08*1.47 |
4/2 |
3.5 |
5.6 |
DHIAF-30 |
30 |
5.6*1.32*1.63 |
4/2 |
4.7 |
7.3 |
DHIAF-42 |
42 |
7.35*1.75*1.95 |
4/2 |
5.0 |
8.5 |
DHIAF-70 |
70 |
8.1*1.8*2.0 |
4/2 |
5.7 |
10.7 |
DHIAF-100 |
100 |
9.4*2.0*2.1 |
4/2 |
7.1 |
14.6 |
DHIAF-170 |
170 |
9.7*2.5*2.7 |
4/2 |
9.9 |
22.4 |
DHIAF-250 |
250 |
10.9*2.5*2.7 |
4/2 |
11.4 |
30.1 |
DHIAF-500 |
500 |
12.4*3.7*3.3 |
4/2 |
16.9 |
54.3 |
|
|
|
|
|
|
|
|
|
|
|
|